Page 1 of 5
Audionote Model E Kit Speakers
Posted: Tue Oct 07, 2025 12:01 pm
by Chris1967
Κοιτάζοντας στο διαδίκτυο και μετά από αναφορές του Πάνου και του Κώστα (και έχοντας ακούσει τα συγκεκριμένα ηχεία στο Μόναχο), και μετά από συζητήσεις για τι μπορεί να παίξει με 300Β κλπ...

- ane-main-350.jpg (27.03 KiB) Viewed 1542 times
Μου κάθισε η ιδέα για κατασκευή
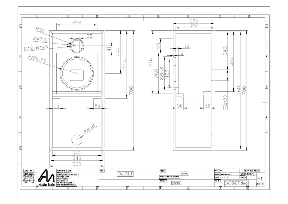
Βρήκα τα σχέδια

- an53dj.jpg (168.33 KiB) Viewed 1546 times
και το Hifi Collective στην Αγγλία έχει αυθεντικές μονάδες
https://www.hificollective.co.uk/kits/a ... ofers.htmlhttps://www.hificollective.co.uk/kits/a ... eters.htmlΤι λέτε?
Re: Audionote Model E Kit Speakers
Posted: Tue Oct 07, 2025 12:20 pm
by Chris1967
Re: Audionote Model E Kit Speakers
Posted: Tue Oct 07, 2025 12:38 pm
by kostas6a3
Α! γεια σου !!!!
Είχα καλύτερα σχέδια για την κατασκευή της καμπίνας, που μου είχαν στείλει απο την Audio Note UK το μακρινό 1997.
Δεν ξέρω τι τα έκανα.
Τα συγκεκριμένα τα είχα πρωτοακούσει στο Μενδρινό, όταν έφερνε τότε τα JM Lab και Martin Logan. Για την ιστορία τα ξαναέβαλε άμεσα στα κουτιά τους επειδή ήθελε να πουλάει τα άλλα δύο.

Re: Audionote Model E Kit Speakers
Posted: Tue Oct 07, 2025 1:09 pm
by Chris1967
Υπάρχει το κιτ (χωρίς τα κουτιά μόνο ηχεία/cross και υλικά) στα 2800 δολάρια συν 100 δολάρια μεταφορικά και το τελωνείο το πληρώνει αυτός.
https://ankaudiokits.com/product/speaker-kit-03/Από τον Εγγλέζο βγαίνει ακριβότερα με τα ηχεία μόνο να ξεπερνάνε αυτό το ποσό συν το τελωνείο που δεν το γλυτώνεις.
Βέβαια αν συζητάμε για τις μονάδες με ασημένιο σύρμα και μεγαλύτερους μαγνήτες, που δυστυχώς απ ότι καταλαβαίνω δεν το γλυτώνεις γιατί αυτές είναι και οι μονάδες που έχουν μεγάλύτερη ευαισθησία.
Re: Audionote Model E Kit Speakers
Posted: Tue Oct 07, 2025 1:19 pm
by Chris1967

- 61263a5s-960.jpg (106.23 KiB) Viewed 1525 times
Και τα αυθεντικά σχέδια
Re: Audionote Model E Kit Speakers
Posted: Tue Oct 07, 2025 1:50 pm
by kostas6a3
Αν και όταν αποφασίσεις να τα φτιάξεις εννοείται ότι θα κάνεις πρώτα τα κουτιά και εφόσον πετύχουν προχωράς.
Re: Audionote Model E Kit Speakers
Posted: Tue Oct 07, 2025 2:15 pm
by Dr Pan K
H λέξη "αυθεντικα" δίπλα σε οποιοδήποτε προϊόν της Audio Note Αγγλίας είναι για γέλια.
Τρίζουν τα κόκαλα του Snell...
Από εκεί και πέρα γιατι να φτιάξετε Snell type J και οχι κάποιο τριδρομο; Το crossover δεν κανει τόσο μεγάλη διαφορά όσο λένε.
Και γιατι δεν κοιτάτε για δεύτερο χερι;
Re: Audionote Model E Kit Speakers
Posted: Tue Oct 07, 2025 3:31 pm
by DomieMic65
Εγώ DeVore θα ήθελα να ακούσω πολύ!
Re: Audionote Model E Kit Speakers
Posted: Tue Oct 07, 2025 5:10 pm
by Chris1967
Δεν είναι type J είναι type E/II το αντίστοιχο Snell.
Ο πρόδρομος του Audio Note.
Το πρόβλημα είναι ότι δεν τα βρίσκεις εύκολα.
Αυτή την στιγμή μόνο ένα type EII στην Δανία στα 700 ευρώ.
Για ποια τρίδρομα λες Πάνο?
Re: Audionote Model E Kit Speakers
Posted: Tue Oct 07, 2025 5:52 pm
by Dr Pan K
Snell A, ή κατι παραπλησιο.
Tα Snell type E, J, K ειναι ολα παραπλησια (διδρομα, σχετικα ευαισθητα, ευκολο crossover). Aν δεις την Audio Note UK εχει μοντελα ΑΝ-Ε, ΑΝ-J, ΑΝ-K..... Σε αφηνω να μαντεψεις απο που τα εχει "εμπνευστει"
https://www.audionote.co.uk/loudspeakers